ハンディナース対応個別線式ナースコール NBM-HP(ルーム単位通話)

特長

ルーム単位呼出・ルーム単位通話

ルーム単位で患者さんからの呼出を表示し、ルーム単位でお話しできます。

※ボード型親機は該当する病室の全ての患者さんの表示灯が点灯します。

イメージ:患者さんとナースコールする際のイメージ

ハンディナースシステムと接続可能

ハンディナースでは、移動中やベッドサイドにいても、患者さんからの呼出にその場で応答できます。
ナースステーション以外からでも患者さんへの一斉放送や、呼出・通話ができます。また、看護師さんどうしの連絡ができます。

※連動可能なPHSについてはハンディナースシステムページにてご確認ください。
ハンディナースシステム

PS切替機能

夜間など看護師さんの人手が少ないときは、患者さんからの呼出を別フロアのハンディナースで受けることができます(PS切替)。

操作方法

通常の呼出

イメージ:通常の呼出操作方法

トイレ呼出

イメージ:トイレでの呼出操作方法

機器一覧

ナースステーション

ナースコール親機:卓上型

NBM-HP型親機
写真:ハンディナース対応60局用親機	NBM-60B/A-HP

NBM-60B/A-HP

ハンディナース対応60局用親機

NBM-60B/A-HP

ハンディナース対応80局用親機

NBM-80B/A-HP

ハンディナース対応100局用親機

NBM-100B/A-HP

壁掛で使用する場合は当社担当者までご相談下さい。

ハンディナースシステム 詳しくはこちら

病室

呼出ボタン

写真:呼出握りボタン・NBR-8A-C

呼出握りボタン

NBR-8A-C

写真:コンセント・NBR-1A-C

コンセント

NBR-1A-C

写真:コンセント付マイク・NBR-MB

コンセント付マイク

NBR-MB

※メタルコンセント付

スピーカー子機

写真:天井埋込型スピーカー子機・NB-LB-C

天井埋込型スピーカー子機

NB-LB-C

マイク

写真:天井埋込型マイク・NA-SB-C

天井埋込型マイク

NA-SB-C

個室用子機

写真:ハンド型子機・NB-RC/A

ハンド型子機

NB-RC/A

写真:ワイヤレス呼出ボタン受信機、マルチハートコール接続用ハンド型子機:NB-RC9F

ワイヤレス呼出ボタン受信機、マルチハートコール接続用ハンド型子機

NB-RC9F

写真:コンセント・NBR-HP

コンセント

NBR-HP

※ハンド型子機用

ワイヤレス呼出ボタン

写真:ワイヤレス呼出ボタンセット:NBS-8WN

ワイヤレス呼出ボタンセット

NBS-8WN

マルチハートコール

写真:マルチハートコール・NBR-9MC

マルチハートコール

NBR-9MC

共用部

トイレ用機器

写真:呼出ボタン・NBR-7WA

呼出ボタン(点字・英文付)

NBR-7WA-TC

※トイレ用

浴室用機器

写真:浴室用呼出引き輪・NR-7BLA-P

浴室呼出引き輪

NR-7BLA-P

廊下

廊下灯

写真:廊下灯・NBR-4B

廊下灯

NBR-4B

復旧ボタン

写真:復旧ボタン・NBR-2A-C

復旧ボタン

NBR-2A-C

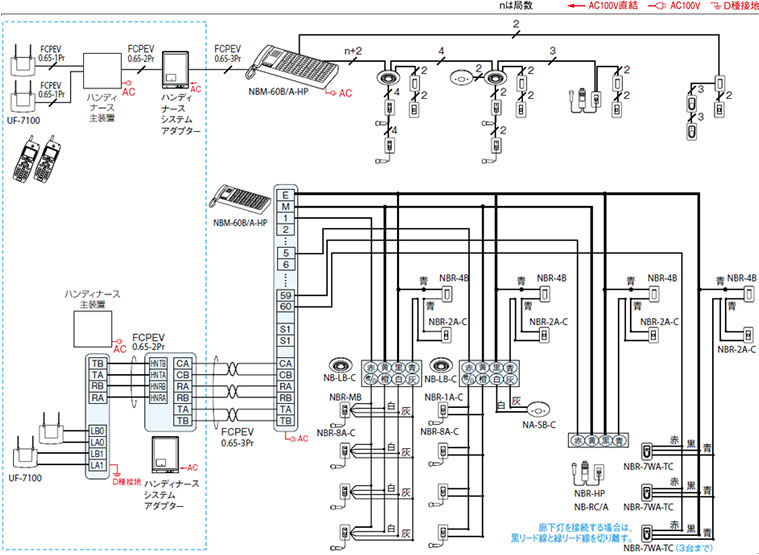
配線本数・接続図例

配線上のご注意
ハンド型子機・NB-RC/Aを接続する場合は、共通線Eに線径1.6mm線1本または0.9mm線を2本合わせて使用してください。

配線本数・接続図例を見る(JPG)